NOWOCZESNY DOM W STARYM FORDONIE - 116 m² | 5 POKOI | OGRÓD
Nowoczesny dom na sprzedaż w Bydgoszczy (Starym Fordonie) o powierzchni 116 m², w zabudowie bliźniaczej, z ogrodem i funkcjonalnym układem 5 pokoi. Nieruchomość z rynku pierwotnego (2026) oferuje możliwość wydzielenia dwóch niezależnych mieszkań, co czyni ją idealną zarówno dla rodziny, jak i inwestora. Świetna lokalizacja - blisko Wisły, terenów zielonych, szkół, sklepów oraz komunikacji miejskiej
Przemyślana przestrzeń
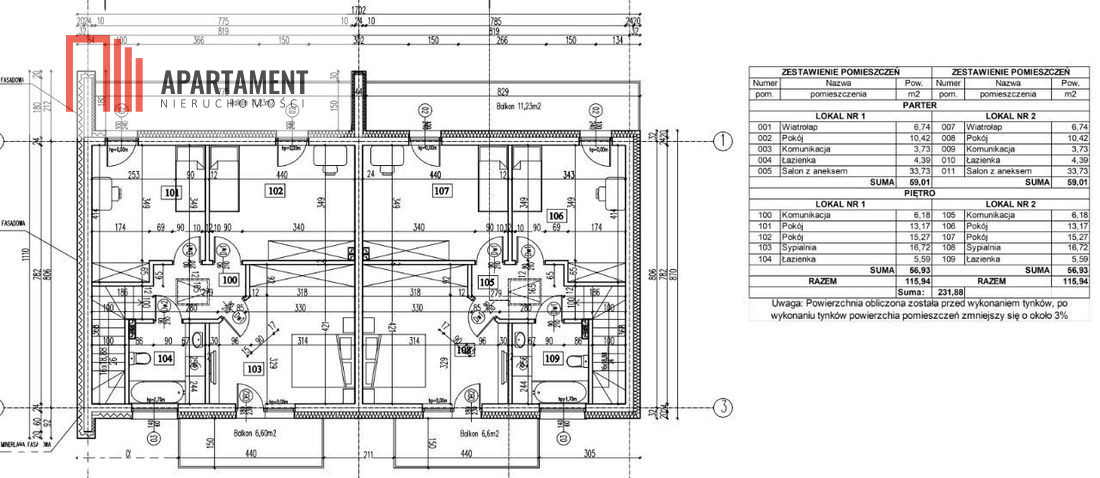
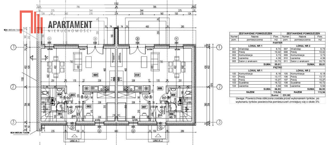
Dom o powierzchni 116 m² oferuje funkcjonalny układ pomieszczeń:
• przestronny salon z wyjściem na taras
• strefa kuchenna
• 5 pokoi - idealne dla rodziny lub pracy zdalnej
• możliwość wydzielenia dwóch niezależnych mieszkań
________________________________________
Komfort i jakość wykonania
Nieruchomość realizowana z dbałością o trwałość i efektywność:
• ściany z gazobetonu z 20 cm izolacją
• trzyszybowe okna VEKA
• ogrzewanie podłogowe z piecem gazowym Vaillant
• dachówka betonowa w eleganckim, grafitowym kolorze
• strop ocieplony warstwą min. 30 cm
• pełne instalacje + zagospodarowany teren (ogrodzenie, kostka, taras)
________________________________________
Lokalizacja - równowaga między naturą a miastem
Stary Fordon to miejsce o wyjątkowym klimacie:
• bliskość Wisły, bulwarów i terenów spacerowych
• szybki dostęp do szkół, sklepów i komunikacji
• spokojne otoczenie sprzyjające codziennemu komfortowi
________________________________________
Dostępne warianty:
• 849 000 zł - działka ok. 130 m²
• 899 000 zł - działka ok. 230 m²
Stan: do wykończenia - możliwość aranżacji według własnych potrzeb.
________________________________________
Dla kogo?
To idealna propozycja dla osób poszukujących nowoczesnego domu w spokojnej lokalizacji, jak również dla inwestorów - dzięki możliwości podziału na dwa niezależne lokale.
________________________________________
Zapraszam do kontaktu w celu uzyskania szczegółowych informacji oraz prezentacji inwestycji.
Tomasz Polasik 513 383 140
Kontaktując się z agentem odpowiedzialnym za ofertę, koniecznie zapytaj jakie są warunki współpracy z naszym biurem oraz co w związku ze współpracą zapewniamy.
Dbając o bezpieczeństwo klientów sprzedających, a często także na ich wyraźne życzenie, nie podajemy adresów nieruchomości bez podpisania uprzednio umowy o pośrednictwo w kupnie lub najmie.
Prowizja jest uzgadniania indywidualnie, na spotkaniu i zależy od zakresu wykonywanych obowiązków na rzecz klienta zamawiającego.
Wszelkie podane przez Biuro informacje nie są ofertą w rozumieniu Kodeksu Cywilnego.
Zgodnie z Ustawą z dnia 26 lipca 2024 r. o zmianie ustawy o prawie autorskim i prawach pokrewnych, ustawy o ochronie baz danych oraz ustawy o zbiorowym zarządzaniu prawami autorskimi i prawami pokrewnymi, wykorzystywanie autorskich pomysłów, rozwiązań, kopiowanie, rozpowszechnianie zdjęć, fragmentów grafiki, tekstów opisów w celach zarobkowych, bez zezwolenia autora jest zabronione i stanowi naruszenie praw autorskich oraz podlega karze. Znaki towarowe i graficzne są własnością firmy Nieruchomości Apartament.
Nowoczesny dom w Starym Fordonie
lokalizacja: Bydgoszcz
849 000,00 PLN
7 318,97 PLN
Dane szczegółowe
- Typ transakcji: sprzedaż
- Typ nieruchomości: Dom
- Lokalizacja: Bydgoszcz
- Powierzchnia:116 m2
- Liczba pokoi: 5
- Rok budowy: 2026
- Piętro: 2 z 1
-
Powierzchnia działki:
130 m2
- Numer oferty: 814260
- Cena: 849 000,00 PLN
- Cena za m2: 7 318,97 PLN
Opis nieruchomości
Kontakt do opiekuna:
NIERUCHOMOŚCI APARTAMENT