Oferta dotyczy sprzedaży kamienicy w centrum Nakła nad Notecią usytuowanej przy samym rynku miasta.
Budynek posiada dwa poziomy.
Parter to trzy pomieszczenia handlowo-usługowe.
Obecnie działający sklep o powierzchni 75 mkw., lokal 12 mkw., oraz pomieszczenie wielkości 95 mkw. z pełnym wyposażeniem lokalu gastronomicznego.
Do niego też przynależy "letni ogród" znajdujący się od podwórza, który nadaje restauracji urokliwy klimat.
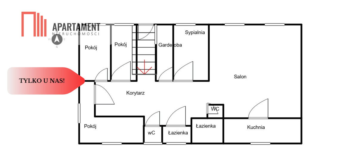
Piętro kamienicy to powierzchnia ok. 180 mkw. na którym znajdziemy 5 pokoi, kuchnię, dwie łazienki, korytarz, garderobę oraz pomieszczenie gospodarcze.
Do dyspozycji jest także strych nadający się do adaptacji według własnego pomysłu, dostępna także piwnica pod połową budynku.
Budynek w roku 2017 przeszedł generalny remont, wymieniono dach, zrobiono ocieplenie i elewację, wymieniono instalację elektryczną, centralnego ogrzewania, wod-can, wyremontowano pomieszczenia w całym obiekcie.
Ogrzewanie pochodzi z sieci gazowej.
Ta wspaniała i piękna kamienica to propozycja dla osób pragnących być właścicielami części nakielskiego rynku.
Parter idealnie nadaje się do prowadzenia działalności handlowo-usługowej bądź dalszego wynajmu, natomiast piętro wspaniale sprawdzi się jako część mieszkalna w którą tchnięto duszę, jak i klimat minionych czasów.
Oferujemy pełne wsparcie naszego doradcy finansowego w celu pozyskania środków finansowania zakupu nieruchomości.
Zainteresowanych zapraszam na prezentację.
Oferta wyłącznie w biurze:
Nieruchomości Apartament
Krzysztof Nowicki
Tel. 576 440 755
Kontaktując się z agentem odpowiedzialnym za ofertę, koniecznie zapytaj jakie są warunki współpracy z naszym biurem oraz co w związku ze współpracą zapewniamy.
Dbając o bezpieczeństwo klientów sprzedających, a często także na ich wyraźne życzenie, nie podajemy adresów nieruchomości bez podpisania uprzednio umowy o pośrednictwo w kupnie lub najmie.
Prowizja jest uzgadniania indywidualnie, na spotkaniu i zależy od zakresu wykonywanych obowiązków na rzecz klienta zamawiającego.
Wszelkie podane przez Biuro informacje nie są ofertą w rozumieniu Kodeksu Cywilnego.
Zgodnie z Ustawą z dnia 26 lipca 2024 r. o zmianie ustawy o prawie autorskim i prawach pokrewnych, ustawy o ochronie baz danych oraz ustawy o zbiorowym zarządzaniu prawami autorskimi i prawami pokrewnymi, wykorzystywanie autorskich pomysłów, rozwiązań, kopiowanie, rozpowszechnianie zdjęć, fragmentów grafiki, tekstów opisów w celach zarobkowych, bez zezwolenia autora jest zabronione i stanowi naruszenie praw autorskich oraz podlega karze. Znaki towarowe i graficzne są własnością firmy Nieruchomości Apartament.
*Kamienica przy nakielskim rynku
lokalizacja: Nakło nad Notecią
2 290 000,00 PLN
6 325,97 PLN
Dane szczegółowe
- Typ transakcji: sprzedaż
- Typ nieruchomości: Dom
- Lokalizacja: Nakło nad Notecią
- Powierzchnia:362 m2
- Liczba pokoi: 6
- Rok budowy: 1890
- Liczba pięter: 2
-
Powierzchnia działki:
348 m2
- Numer oferty: 805251
- Cena: 2 290 000,00 PLN
- Cena za m2: 6 325,97 PLN
Opis nieruchomości
Kontakt do opiekuna:
NIERUCHOMOŚCI APARTAMENT