Wyjątkowy Dom - Nowoczesne Budownictwo

lokalizacja: Stradomia Wierzchnia

389 000,00 PLN

6 063,91 PLN

Opis nieruchomości

!!! BEZ PROWIZJI !!!
!!! BEZ PODATKU PCC !!!

Opiekun oferty
Adrian Karolyi
+48793966800
Jeżeli są zainteresowani Państwo tą, albo podobną nieruchomością, zapraszam do kontaktu. Część ofert sprzedajemy poza portalami.

Gotowy do zamieszkania od sierpnia 2025!
Przedstawiamy Państwu doskonałą okazję inwestycyjną - dom jednorodzinny w malowniczej, kameralnej inwestycji. Zaledwie 40 nowoczesnych domów energooszczędnych w zielonym otoczeniu z wyjątkowo dogodnym połączeniem komunikacyjnym z Wrocławiem poprzez trasę S8.

Dlaczego Warto Wybrać Ten Dom?
Idealne miejsce do życia - dom usytuowany w malowniczej okolicy, na pięknej, regularnej działce o powierzchni 400 m² oferuje prywatność i przestrzeń dla całej rodziny.

Ekonomiczność użytkowania - dzięki zastosowaniu systemu energooszczędnego, koszty utrzymania będą minimalne. Wysokiej jakości materiały ceramiczne gwarantują trwałość i niezawodność na lata.

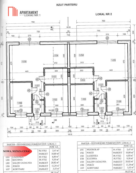
Przestronny i Przemyślany Rozkład - 64,15 m²
Każdy metr kwadratowy został zaprojektowany z myślą o Państwa komforcie:

- Salon - 20,82 m² - serce domu, idealne miejsce na wspólne chwile z rodziną
- Kuchnia - 9,30 m² - funkcjonalna przestrzeń kulinarna
- Sypialnia - 11,24 m² - prywatna strefa relaksu
- Pokój - 10,80 m² - uniwersalne pomieszczenie (biuro/pokój dziecięcy)
- Łazienka - 6,00 m² - komfortowa strefa higieny
- Korytarz - 3,52 m² - praktyczne połączenie pomieszczeń
- Wiatrołap - 2,47 m² - wygodna strefa wejściowa

Najwyższe Standardy Wykonania
--- Solidna Konstrukcja
✓ Ściany nośne ceramiczne 25 cm - gwarancja stabilności
✓ Profesjonalne ocieplenie styropianem 15 cm
✓ Estetyczna dachówka ceramiczna
✓ Zaawansowane ocieplenie dachu pianą PUR 25 cm
✓ Nowoczesne posadzki cementowe z pełną izolacją (folia PCV + styropian 12 cm)

--- Wysokiej Jakości Stolarka
✓ Eleganckie okna PCV w kolorze antracyt - nowoczesny design
✓ Praktyczne rolety zewnętrzne przy każdym oknie
✓ Wytrzymałe parapety zewnętrzne z granitu

--- Kompletne Instalacje
✓ Profesjonalna instalacja elektryczna
✓ Pełna instalacja wodno-kanalizacyjna i C.O.
✓ Przygotowanie pod RTV i internet

--- Ekologiczne Ogrzewanie
✓ Nowoczesne ogrzewanie podłogowe w całym domu
✓ Ekonomiczna pompa ciepła - niskie rachunki!

--- Niezawodne Pokrycie
✓ Wytrzymała konstrukcja szkieletowa
✓ Wysokiej jakości dachówka ceramiczna
✓ Kompletny system rynnowy PCV

--- Lokalizacja
✓ 35 min do centrum Handlowego Korona
✓ 10 min do Oleśnicy
✓ 5 min do Sycowa
✓ 3 min do zalewu Stradomia
✓ 1 min do supermarketu

Inwestycja w Przyszłość
Ten dom to nie tylko miejsce zamieszkania - to inwestycja w jakość życia Państwa rodziny. Połączenie nowoczesnych rozwiązań technologicznych z komfortem użytkowania sprawia, że każdy dzień będzie przyjemnością.

Nie czekajcie Państwo - skontaktujcie się z nami już dziś i umówcie się na prezentację!
Profesjonalna obsługa sprzedaży • Pomoc w formalnościach • Transparentne warunki


 Zapraszam do kontaktu:
Adrian Karolyi
+48793966800
https://nieruchomosci-apartament.pl/



Kontaktując się z agentem odpowiedzialnym za ofertę, koniecznie zapytaj jakie są warunki współpracy z naszym biurem oraz co w związku ze współpracą zapewniamy.
Dbając o bezpieczeństwo klientów sprzedających, a często także na ich wyraźne życzenie, nie podajemy adresów nieruchomości bez podpisania uprzednio umowy o pośrednictwo w kupnie lub najmie.

Prowizja jest uzgadniania indywidualnie, na spotkaniu i zależy od zakresu wykonywanych obowiązków na rzecz klienta zamawiającego.

Wszelkie podane przez Biuro informacje nie są ofertą w rozumieniu Kodeksu Cywilnego.

Zgodnie z Ustawą z dnia 26 lipca 2024 r. o zmianie ustawy o prawie autorskim i prawach pokrewnych, ustawy o ochronie baz danych oraz ustawy o zbiorowym zarządzaniu prawami autorskimi i prawami pokrewnymi, wykorzystywanie autorskich pomysłów, rozwiązań, kopiowanie, rozpowszechnianie zdjęć, fragmentów grafiki, tekstów opisów w celach zarobkowych, bez zezwolenia autora jest zabronione i stanowi naruszenie praw autorskich oraz podlega karze. Znaki towarowe i graficzne są własnością firmy Nieruchomości Apartament.

Kontakt do opiekuna:

NIERUCHOMOŚCI APARTAMENT

ADRIAN KAROLYI
Nieprawidłowy adres E-mail
Mapa

Strona korzysta z plików cookie w celu realizacji usług zgodnie z Polityką prywatności. Możesz określić warunki przechowywania lub dostępu do cookie w Twojej przeglądarce.