LOKAL USŁUGOWO-HANDLOWY 81 m2 CENTRUM MIASTA

lokalizacja: Bydgoszcz

1 980,00 PLN

24,44 PLN

Opis nieruchomości

Lokal - Śródmieście - bardzo dobra lokalizacja - 81 m2

OFERTA W NASZYM BIURZE


Mam przyjemność zaprezentować Państwu bardzo ładny lokal w samym centrum BYDGOSZCZY, ul. Kaszubska

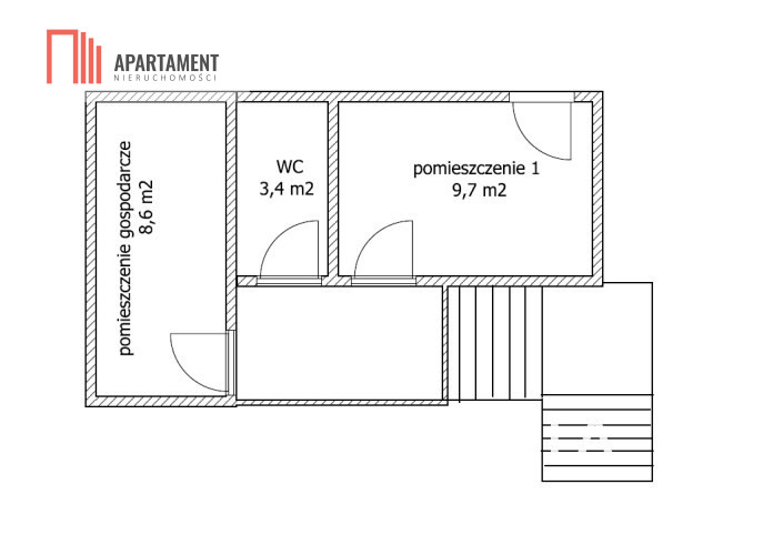
Nieruchomość ma około 81 m2 i składa się z części głównej, zaplecza socjalnego, biura i łazienki.

Lokal z dużym potencjałem i różnorodnością profilu jego wykorzystania.

Wejście do lokalu płaskie, bez schodów.

Wolny "od zaraz"

Opłaty:
Czynsz najmu: 1980 zł netto/miesięcznie
Czynsz wspólnoty 585zł
Ogrzewanie miejskie
Woda - wg zużycia
Prąd - wg zużycia

Serdecznie polecam i zapraszam na prezentację

KONTAKT:
Mariusz Sikora



Kontaktując się z agentem odpowiedzialnym za ofertę, koniecznie zapytaj jakie są warunki współpracy z naszym biurem oraz co w związku ze współpracą zapewniamy.
Dbając o bezpieczeństwo klientów sprzedających, a często także na ich wyraźne życzenie, nie podajemy adresów nieruchomości bez podpisania uprzednio umowy o pośrednictwo w kupnie lub najmie.

Prowizja jest uzgadniania indywidualnie, na spotkaniu i zależy od zakresu wykonywanych obowiązków na rzecz klienta zamawiającego.

Wszelkie podane przez Biuro informacje nie są ofertą w rozumieniu Kodeksu Cywilnego.

Zgodnie z Ustawą z dnia 26 lipca 2024 r. o zmianie ustawy o prawie autorskim i prawach pokrewnych, ustawy o ochronie baz danych oraz ustawy o zbiorowym zarządzaniu prawami autorskimi i prawami pokrewnymi, wykorzystywanie autorskich pomysłów, rozwiązań, kopiowanie, rozpowszechnianie zdjęć, fragmentów grafiki, tekstów opisów w celach zarobkowych, bez zezwolenia autora jest zabronione i stanowi naruszenie praw autorskich oraz podlega karze. Znaki towarowe i graficzne są własnością firmy Nieruchomości Apartament.

Kontakt do opiekuna:

NIERUCHOMOŚCI APARTAMENT

MARIUSZ SIKORA
Nieprawidłowy adres E-mail
Mapa

Strona korzysta z plików cookie w celu realizacji usług zgodnie z Polityką prywatności. Możesz określić warunki przechowywania lub dostępu do cookie w Twojej przeglądarce.