Warsztat na wynajem w miejscowości Kowalewo/ Szubin. Lokal usługowy.
Zapraszam do zapoznania się z ofertą wynajmu atrakcyjnej, dochodowej nieruchomości położonej w miejscowości Kowalewo, w gminie Szubin, w województwie kujawsko - pomorskim.
To wyjątkowa oferta 2 w 1 dla osób, które szukają kompleksowego biznesu o dużym potencjale!
Przedmiot wynajmu stanowi cała, gotowa i prosperująca FIRMA, w której skład wchodzi m.in. nieruchomość gruntowa, o pow. 2510m2 częściowo zabudowana budynkiem warsztatowo - gastronomicznym o łącznej powierzchni całkowitej 418m2.
Kluczowe informacje o nieruchomości:
PARTER Część usługowa - warsztat wulkanizacyjny (211,78 m²)
Kompletnie wyposażony warsztat 112m2 (kanał na całej długości, duże bramy wjazdowe)
Pomieszczenia socjalne, magazynowe, szatnia, biuro/sklep, poczekalnia WC dostosowane dla osób niepełnosprawnych
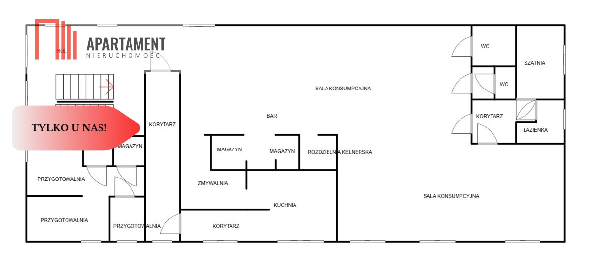
PIĘTRO BUDYNKU Część gastronomiczna - restauracja (206 m²)
*sala konsumpcyjna (93.59m2)
*bar 7.62m2,
*hol 9.81m2
kuchnia zmywalnia, magazyny, przygotowalnie, pomieszczenia socjalne, szatnia, WC
Restauracja z przestronną salą oraz pełnym zapleczem kuchennym.
Istnieje możliwość rozwinięcia cateringu lub organizacji przyjęć
Media i technologie:
*budynek ogrzewany piecem na eco-groszek ( nadmuchowe + grzejniki, pietro ogrzewanie podłogowe) dodatkowo elektryczne promienniki
*restauracja klimatyzowana
*monitoring obiektu
Ogrodzenie solidne, betonowe z szeroką bramą wjazdową, teren w całości utwardzony kostką co ułatwia transport i zapewnia estetyczny wygląd.
Potencjał rozwoju - duża działka i wszechstronny obiekt
Gotowa infrastruktura do prowadzenia różnorodnej działalności gospodarczej.
Świetna lokalizacja - bliskość trasy S5 gwarantuje łatwy dojazd z Bydgoszczy (ok. 20 km) oraz innych miast regionu
Możliwość dalszego rozwoju i dostosowania do indywidualnych potrzeb.
Firma działa na rynku kilkanaście lat - tym samym posiada wielu stałych klientów.
Zapraszam do kontaktu i obejrzenia nieruchomości!
Opiekun oferty:
Agnieszka Śliwińska
Specjalista ds. nieruchomości
tel. 575-017-070
Kontaktując się z agentem odpowiedzialnym za ofertę, koniecznie zapytaj jakie są warunki współpracy z naszym biurem oraz co w związku ze współpracą zapewniamy.
Dbając o bezpieczeństwo klientów sprzedających, a często także na ich wyraźne życzenie, nie podajemy adresów nieruchomości bez podpisania uprzednio umowy o pośrednictwo w kupnie lub najmie.
Prowizja jest uzgadniania indywidualnie, na spotkaniu i zależy od zakresu wykonywanych obowiązków na rzecz klienta zamawiającego.
Wszelkie podane przez Biuro informacje nie są ofertą w rozumieniu Kodeksu Cywilnego.
Zgodnie z Ustawą z dnia 26 lipca 2024 r. o zmianie ustawy o prawie autorskim i prawach pokrewnych, ustawy o ochronie baz danych oraz ustawy o zbiorowym zarządzaniu prawami autorskimi i prawami pokrewnymi, wykorzystywanie autorskich pomysłów, rozwiązań, kopiowanie, rozpowszechnianie zdjęć, fragmentów grafiki, tekstów opisów w celach zarobkowych, bez zezwolenia autora jest zabronione i stanowi naruszenie praw autorskich oraz podlega karze. Znaki towarowe i graficzne są własnością firmy Nieruchomości Apartament.
* Wynajem warsztat restauracja blisko S5
lokalizacja: Kowalewo, Piękna
15 000,00 PLN
35,90 PLN
Dane szczegółowe
- Typ transakcji: wynajem
- Typ nieruchomości: Komercyjny
- Lokalizacja: Kowalewo, Piękna
- Powierzchnia:417,83 m2
- Liczba pokoi: 20
- Rok budowy: 2011
- Piętro: 1 z 1
-
Powierzchnia działki:
2 510 m2
- Numer oferty: 113783
- Cena: 15 000,00 PLN
- Cena za m2: 35,90 PLN
Opis nieruchomości
Kontakt do opiekuna:
NIERUCHOMOŚCI APARTAMENT