Mieszkanie poddaszowe/Do remontu/100m2 po podłodze

lokalizacja: Toruń

300 000,00 PLN

3 689,13 PLN

Opis nieruchomości

klimatyczne poddasze w rewitalizowanej kamienicy | 100 m² po podłodze | ogromny potencjał aranżacyjny.



Na sprzedaż wyjątkowe mieszkanie zlokalizowane na poddaszu klimatycznej kamienicy z 1903 roku, która obecnie przechodzi kompleksową rewitalizację. To propozycja dla osób ceniących charakter przedwojennej architektury i chcących stworzyć niepowtarzalne wnętrze według własnej wizji.
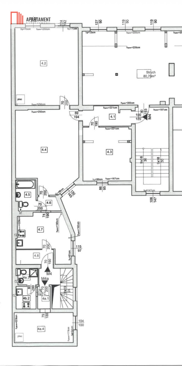
Mieszkanie posiada 81,32 m² powierzchni użytkowej oraz aż ok. 100 m² powierzchni po podłodze, co daje bardzo duże możliwości aranżacyjne. Skosy poddasza tworzą niepowtarzalny klimat i pozwalają zaprojektować przestrzeń w stylu loftowym, nowoczesnym lub klasycznym.
Lokal wymaga remontu, dzięki czemu przyszły właściciel może zaprojektować układ pomieszczeń idealnie dopasowany do swoich potrzeb - od przestronnego apartamentu z dużą strefą dzienną po funkcjonalne mieszkanie rodzinne lub inwestycję pod wynajem.



Najważniejsze atuty nieruchomości:
- klimatyczne poddasze z dużą przestrzenią aranżacyjną,
-1 00 m² po podłodze - więcej możliwości wykorzystania przestrzeni,
- kamienica z 1903 roku w trakcie rewitalizacji,
- możliwość wykonania ogrzewania gazowego,
- idealne pod własne mieszkanie lub inwestycję,
- unikatowy charakter nieruchomości.


 


Lokalizacja:
Nieruchomość znajduje się w bardzo atrakcyjnej części miasta - spokojnej, a jednocześnie dobrze skomunikowanej.
- około 15 minut do centrum Torunia
- zaledwie 3 minuty spacerem do parku


- w pobliżu sklepy, punkty usługowe, komunikacja miejska oraz tereny rekreacyjne


To idealna propozycja dla osób, które szukają mieszkania z charakterem, w historycznej zabudowie, z możliwością stworzenia wyjątkowej przestrzeni do życia.


Zapraszam na prezentacje nieruchomości
Bartosz Samorek
TEL: 792 995 800


 


Kontaktując się z agentem odpowiedzialnym za ofertę, koniecznie zapytaj jakie są warunki współpracy z naszym biurem oraz co w związku ze współpracą zapewniamy.
Dbając o bezpieczeństwo klientów sprzedających, a często także na ich wyraźne życzenie, nie podajemy adresów nieruchomości bez podpisania uprzednio umowy o pośrednictwo w kupnie lub najmie.

Prowizja jest uzgadniania indywidualnie, na spotkaniu i zależy od zakresu wykonywanych obowiązków na rzecz klienta zamawiającego.

Wszelkie podane przez Biuro informacje nie są ofertą w rozumieniu Kodeksu Cywilnego.

Zgodnie z Ustawą z dnia 26 lipca 2024 r. o zmianie ustawy o prawie autorskim i prawach pokrewnych, ustawy o ochronie baz danych oraz ustawy o zbiorowym zarządzaniu prawami autorskimi i prawami pokrewnymi, wykorzystywanie autorskich pomysłów, rozwiązań, kopiowanie, rozpowszechnianie zdjęć, fragmentów grafiki, tekstów opisów w celach zarobkowych, bez zezwolenia autora jest zabronione i stanowi naruszenie praw autorskich oraz podlega karze. Znaki towarowe i graficzne są własnością firmy Nieruchomości Apartament.

Kontakt do opiekuna:

NIERUCHOMOŚCI APARTAMENT

BARTOSZ SAMOREK
Nieprawidłowy adres E-mail
Mapa

Strona korzysta z plików cookie w celu realizacji usług zgodnie z Polityką prywatności. Możesz określić warunki przechowywania lub dostępu do cookie w Twojej przeglądarce.