Mieszkanie w Żninie. Okazja !

lokalizacja: Żnin

270 000,00 PLN

5 094,34 PLN

Opis nieruchomości


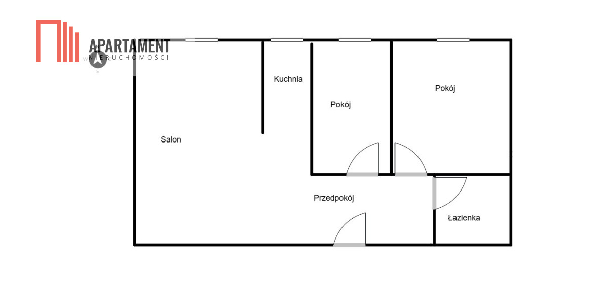
Przedstawiam Państwu ofertę sprzedaży mieszkania w bloku o powierzchni 53 mkw. w Żninie.
Blok umiejscowiony jest na ogrodzonym terenie, gdzie brama wjazdowa jak i drzwi wejściowe do budynku zabezpieczone są kodem oraz pilotem, co wyraźnie podnosi poziom bezpieczeństwa mieszkańców.
Na tym też terenie dostępne są miejsca parkingowe.

Mieszkanie składa się z trzech pokoi, kuchni, łazienki z prysznicem i podgrzewaną podłogą, przedpokoju, plus piwnica. W nieodległym czasie zostało ono wyremontowane.
W cenie pozostaje zabudowa kuchenna wraz ze zmywarką i piecem.

Ogrzewanie ZEC, woda i kanalizacja miejska, budynkiem zarządza wspólnota mieszkaniowa, miesięczne koszty utrzymania to 700 zł.

Cicha i spokojna okolica to idealna propozycja dla osób pragnących zamieszkać z dala od ulicznego zgiełku, przy jednoczesnym bliskim dostępie do wszelakich dóbr jakie niesie za sobą urocze miasto Żnin.

Cena do negocjacji.

Oferujemy bezpłatną pomoc naszego doradcy finansowego w celu pozyskania środków na kredytowanie zakupu.

Zainteresowanych zapraszam na prezentację.

Nieruchomości Apartament
Krzysztof Nowicki
Tel. 576 440 755






Kontaktując się z agentem odpowiedzialnym za ofertę, koniecznie zapytaj jakie są warunki współpracy z naszym biurem oraz co w związku ze współpracą zapewniamy.
Dbając o bezpieczeństwo klientów sprzedających, a często także na ich wyraźne życzenie, nie podajemy adresów nieruchomości bez podpisania uprzednio umowy o pośrednictwo w kupnie lub najmie.

Prowizja jest uzgadniania indywidualnie, na spotkaniu i zależy od zakresu wykonywanych obowiązków na rzecz klienta zamawiającego.

Wszelkie podane przez Biuro informacje nie są ofertą w rozumieniu Kodeksu Cywilnego.

Zgodnie z Ustawą z dnia 26 lipca 2024 r. o zmianie ustawy o prawie autorskim i prawach pokrewnych, ustawy o ochronie baz danych oraz ustawy o zbiorowym zarządzaniu prawami autorskimi i prawami pokrewnymi, wykorzystywanie autorskich pomysłów, rozwiązań, kopiowanie, rozpowszechnianie zdjęć, fragmentów grafiki, tekstów opisów w celach zarobkowych, bez zezwolenia autora jest zabronione i stanowi naruszenie praw autorskich oraz podlega karze. Znaki towarowe i graficzne są własnością firmy Nieruchomości Apartament.

Kontakt do opiekuna:

NIERUCHOMOŚCI APARTAMENT

KRZYSZTOF NOWICKI
Nieprawidłowy adres E-mail
Mapa

Strona korzysta z plików cookie w celu realizacji usług zgodnie z Polityką prywatności. Możesz określić warunki przechowywania lub dostępu do cookie w Twojej przeglądarce.